Property Type
Condo
Parking
2 parking
MLS #
R3059907
Size
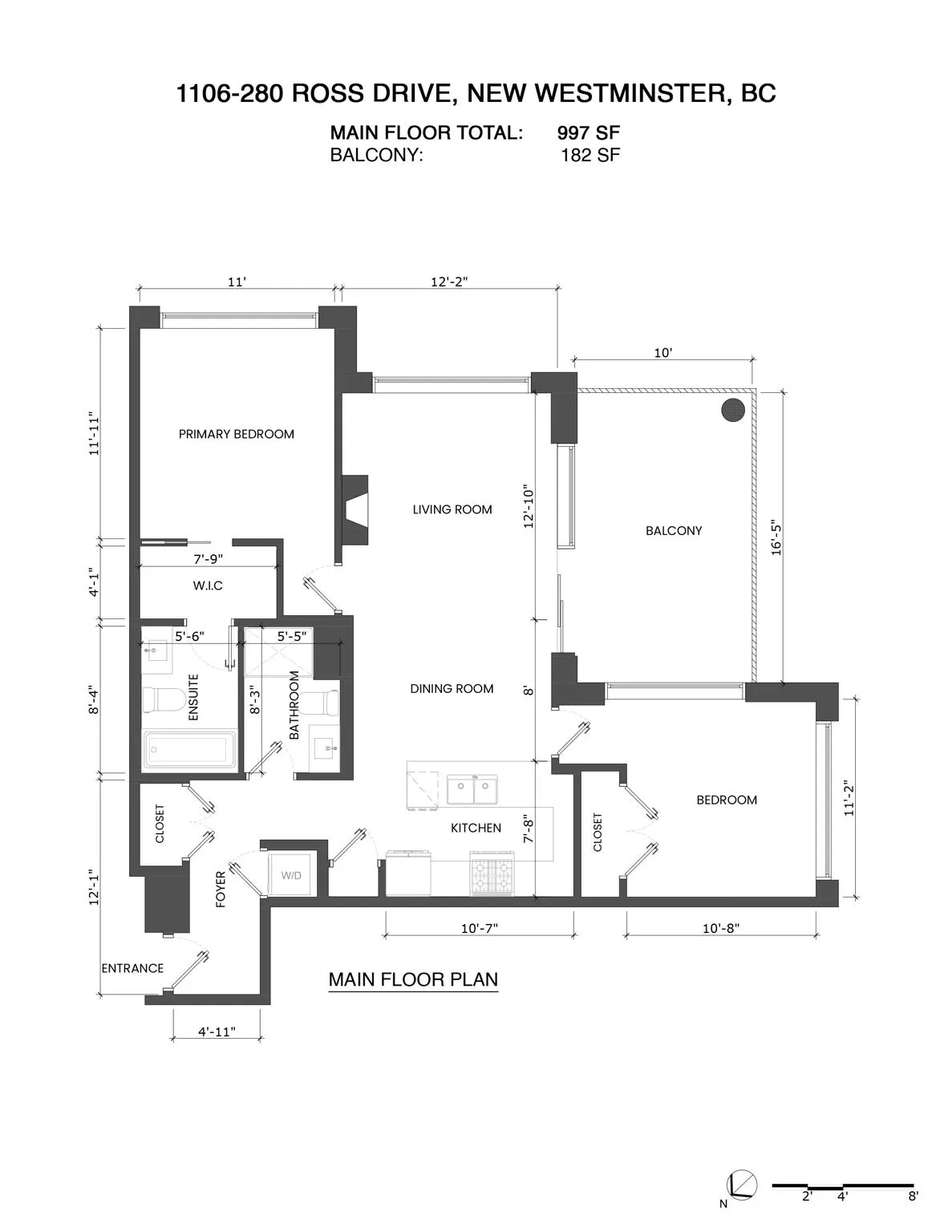
997 sqft
Basement
None
Listed on
-
Lot size
-
Tax
$3,133.35 /yr
Days on Market
-
Year Built
2010
Maintenance Fee
$576.70 /mo
.png)